Step into your coastal sanctuary at
Littoral On Collins
An exclusive enclave of just six breathtaking contemporary townhouses.
Perfectly perched above pristine beaches, each home captures the essence of its natural surroundings with a colour palette that mirrors the beauty of the landscape.
Perfectly perched above pristine beaches, each home captures the essence of its natural surroundings with a colour palette that mirrors the beauty of the landscape.
Designed with meticulous attention to detail, these homes boast superior finishes and a refined aesthetic, where elegance and practicality seamlessly come together. The open-plan design, paired with high ceilings, maximises space and invites an abundance of natural light, creating a living experience that is as comfortable as it is luxurious.
Located in the highly sought-after East of Oxley precinct, these six homes offer a rare chance to embrace an idyllic coastal lifestyle—living in a charming waterfront village setting while staying connected to all the vibrant amenities of the city.
LIFESTYLE
Woody Point is more than just a destination, it’s a lifestyle – Sun, Sand, Sea & Simplicity

- Soak up the relaxed seaside village atmosphere
- Wander or bike along the coastal pathways
- Catch up with friends at The Belvedere Hotel
- Enjoy coastal picnics at any of the seaside parks
- Enjoy the Bramble Bay aquatic playground
- Take a walk along nearby Scotts Point Beach
- Admire a sunrise or sunset from Woody Point Jetty
- Relish the choice of great restaurants and cafes
- Shop at the weekly Redcliffe Farmers Markets
- Indulge in golf, fishing, sailing or jet skiing







YOUR NEW HOME
A boutique development of just six townhouses with key features as standard including:
- Expansive open-plan 210m2 plus, spaces designed for seamless indoor/outdoor living
- 2.7m height throughout with 2.4m joinery height
- Designer kitchen with 40mm stone bench tops and huge cupboard capacity
- Alfresco servery access from kitchen
- Premium BOSCH appliances including under bench oven, built-in microwave, induction cooktop, and semi-integrated dishwasher (fridge not included)
- Secure DLUG with storeroom and internal access
- Home office/study with bespoke cabinetry
- Beautiful 1200 x 600 travertine floor tiles
- Private pet-friendly courtyards, with landscaped gardens – perfect for a low-maintenance outdoor retreat
- Insect screens to all windows
- Energy-efficient design with LED lighting
- Ceiling to Floor Wave Sheers on recessed tracks
- Private upstairs balcony with huge 3.1m slider to integrate indoor/outdoor space
- Premium wool carpets and custom cabinetry
- Additional private parking to townhouses 3 & 6
- Master bedroom complete with a stylish ensuite and spacious walk-in wardrobe
- Two generous bedrooms, both with built-in wardrobes
- Luxurious bathroom with floor-to-ceiling tiles and contemporary fittings
- Ceiling fans to all bedrooms, living and alfresco area
- Fully ducted and zone-controlled Daiken air-conditioning with smart controller
- Schneider iconic range outlets and switches with home automation capability
- NBN lead-in to Data rack, for fast and reliable internet
- Scalable home network (Ubiquiti) and rack-mounted system with integrated CCTV
- Dual WAP Upstairs/Downstairs
- CCTV – front entrance – voice featured and expandable
- Smart lock front door with integrated app and global monitoring/control
MAKE IT YOURS
Upgrade your home with the Littoral On Collins lifestyle options

Under-stair buffet and wine rack

Upstairs lounge - wall mounted TV cabinet

Balcony - automated retracting awning system

Sealed driveway

Smart Home Ready - Schneider Iconic range and Wiser compatible

6kw solar system is pre-wired. Panel, inverter and install required

EV car charger is pre-wired. Charger unit, switchgear and install required

Ubiquiti Advanced and Scalable Home Network

Security Screens

Experience interiors bathed in natural light, featuring warm white walls and timber accents that evoke a soothing, beach-inspired atmosphere. Each townhouse is designed for modern living, seamlessly blending comfort and style.
Imagine mornings strolling along the sea shore and evenings spent enjoying breathtaking sunsets over Bramble Bay.
At Littoral On Collins, your dream of coastal living becomes a reality, where every day feels like a holiday.
ABOUT
HPD is a husband and wife team providing unique homes designed for lifestyle, flexibility, and purpose. In a bustling urban landscape, the vision behind Littoral on Collins was clear: to create a sanctuary that offers non-cluttered simplicity, security, and comfort. Recognising the pressures of modern-day life, where time is often scarce and the demands can be overwhelming, they aspired to provide a haven where residents could escape the hustle and embrace a more active, healthy lifestyle.
Littoral on Collins was designed with intentionality, offering spaces that promote well-being and freedom. Each residence reflects a commitment to simplicity. The thoughtful design encourages a life that can be filled with experiences—travelling, exploring, hosting, and sharing precious moments with family and friends.
This boutique development stands as a beacon of balance, inviting its residents to enjoy the richness of life without the clutter. It embodies the dream of a lifestyle that prioritises meaningful connections and wellness, fostering an environment where individuals can thrive both personally and socially. At Littoral on Collins, the vision was not just about building townhouses but creating homes in a vibrant community where life can be fully embraced.
Littoral
/ˈlɪt(ə)rəl/ - stemming from the Latin word Litor meaning shore.
Adjective
relating to or situated on the shore of the sea or a lake
Noun
a region lying along a shore

Littoral On Collins was designed by national award-winning DCM Building Design with construction due to be completed in early 2026 by Roonsleigh Constructions.

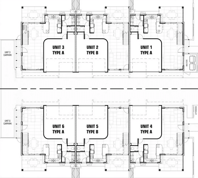
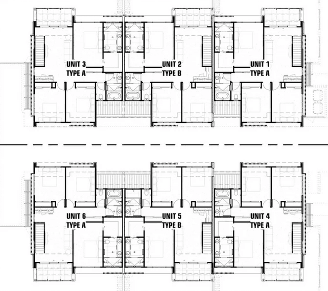
TOWNHOUSE LAYOUTS
Boasting functional layouts with over 210m2 of space designed for modern living

Ground Floor

Level 1